News
+ Events

Our Services

Detailed Structural Analysis and Design

This is TandeM’s bread and butter. TandeM offers technical services related to carrying-out complete structural analysis and design of buildings and other structures. The results of our analysis and designs are translated into details and drawings that serve as bases for construction.

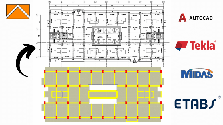
Structural Modeling

TandeM engineers have the necessary skills needed to produce analytical structural models using the MIDAS Design Software packages, as well as the Extended Three-Dimensional Analysis for Buildings (ETABS) software. TandeM engineers take part in continuing education and development programs to keep them updated and upgraded in terms of technical skills and know-how

Structural Inspection / Evaluation / Review

Existing structures, whether fire-damaged, earthquake-damaged, calamity-damaged or simply old, are investigated and assessed in order to establish their structural integrity and adequacy for continued operation. TandeM has the necessary expertise required for such tasks.

Expanded Construction Drawings

Trained under Aidea Philippines, Inc. and TEKLA Software (Finland), a number of our engineers have acquired the necessary skills to produce expanded structural construction drawings, a step higher than the basic Building Information Modeling (BIM). Aside from clash detection, quantity take-offs can be done quickly and accurately, resulting in a more streamlined and efficient design and construction process.

Other
Services

Aside from those listed above, TandeM also offers services which are related to anything and everything STRUCTURAL. These include the following: Peer Review, value-engineering, restoration / rehabilitation / retrofitting of structures, technical advisory / consultancy, and more.

Engineering
Solutions

Feel free to send us a message

Copyright © 2021 TandeM Engineering Consultancy